La Verrière

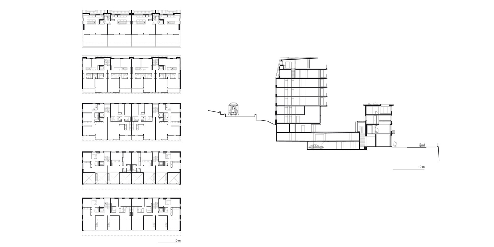
Located on the banks of Lake Geneva, the city of Montreux benefits from a particularly gentle climate giving it a Mediterranean character. It has become, since the 19th century, a popular tourism and pilgrimage destination, especially for a affluent international visitors. This city is well known for its elegant hotels and residences facing the Lake. The project called “La Verrière” consists of the renovation of a long and narrow existing building distinctive mainly for the glasshouse—an old winter garden located at its west end—that was integrated to the renovated part of the project. Inserted between this ancient masonry building, just behind the famous “Montreux Palace,” and the train tracks leading to the Montreux station, two tall residential buildings were erected, with their back leaning on the railway and their main façade completely open towards the lake.

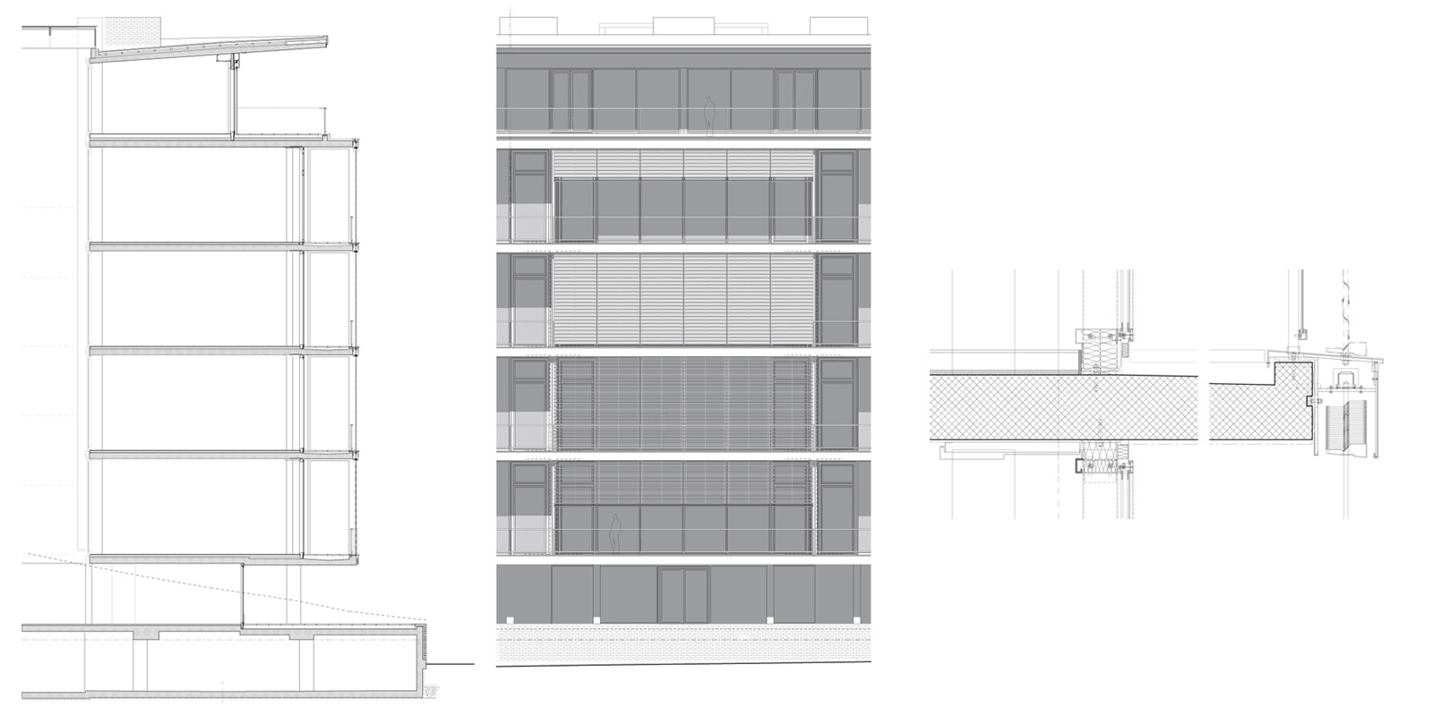
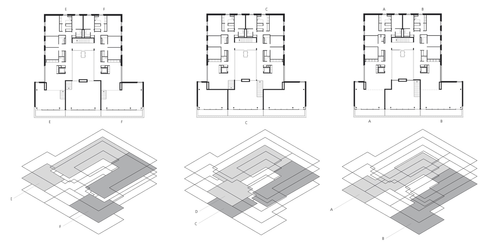
For these new constructions—two glass and brick volumes inserted into the sloping terrain and supported, at street level, by a series of concrete pilotis—the main architectural challenge was to break slightly from a traditional apartment typology of single-level dwelling units in order to provide floor heights appropriate to the proportions of living spaces. To do so, each apartment is composed of two different levels. Facing the lake, are living rooms with dramatic ceiling heights, while rooms surrounding the interior courtyard – bedrooms, baths kitchens, and dining rooms – have average ceiling hieghts. A series of two different typologies perceptible mainly through the project’s section thus overlap, both vertically and horizontally. In order to rationalize construction and articulate the “L” shape plan of each flat into a compact volume, all flats were distributed around a generous inner courtyard, the sides of which are composed of glass bricks to allow maximum income of light into the circulations and creating interesting shadows as the inhabitants move around their respective homes. The facade facing the lake, all in glass, is protected by a series of horizontal shades located at the edge of the balconies, blurring the distinction between inside and outside and conveying a sense of lightness to the whole.

La Verrière

Proyecto
La Verrière
Programa
2 edificios de viviendas, 37 apartamentos y renovación de un edificio histórico, con 9 alojimientos y tiendas
estado
Construido
lugar
Suisse, Montreux
año
2001 - 2005
Cliente
Private Client
Superficie
11000 m2
Autores
RDR architectes
Colaboradores
Jacques Richter, Ignacio Dahl Rocha, Kenneth Ross, Bruno Emmer, Pouska Haessig, Martin Ioelster, Alain Jaquenod, Carine Nilson, Michel Paganin, Philippe Vauthey, Olivier Wavre, Nathalie Khelfi
Ingeniería
estructural
J.-F. Petignat Ingénieurs Conseils SA
Geotécnica
Karakas & Français SA
Ingeniero
HVAC
ER Energies Rationnelles SA
Ingeniero
sanitario
CCTB SA Bureau technique sanitaire
Ingeniero
electrónico
Louis Richard Ingénieurs conseils SA
Otros
especialistas
Géomètre: B + C Ingénieurs SA
Artista
Catherine Bolle, Daniel Schlaepfer
Crédito
foto
Yves André
La Verrière

La Verrière

2001 - 2005 · Suisse, Montreux · Vivienda » Colectiva

Located on the banks of Lake Geneva, the city of Montreux benefits from a particularly gentle climate giving it a Mediterranean character. It has become, since the 19th century, a popular tourism and pilgrimage destination, especially for a affluent international visitors. This city is well known for its elegant hotels and residences facing the Lake. The project called “La Verrière” consists of the renovation of a long and narrow existing building distinctive mainly for the glasshouse—an old winter garden located at its west end—that was integrated to the renovated part of the project. Inserted between this ancient masonry building, just behind the famous “Montreux Palace,” and the train tracks leading to the Montreux station, two tall residential buildings were erected, with their back leaning on the railway and their main façade completely open towards the lake.
+ leer más
Proyecto
La Verrière
estado
Construido
lugar
Suisse, Montreux
año
2001 - 2005
Cliente
Private Client
Superficie
11000 m2
+ ver créditos