Palacio Paz XXI

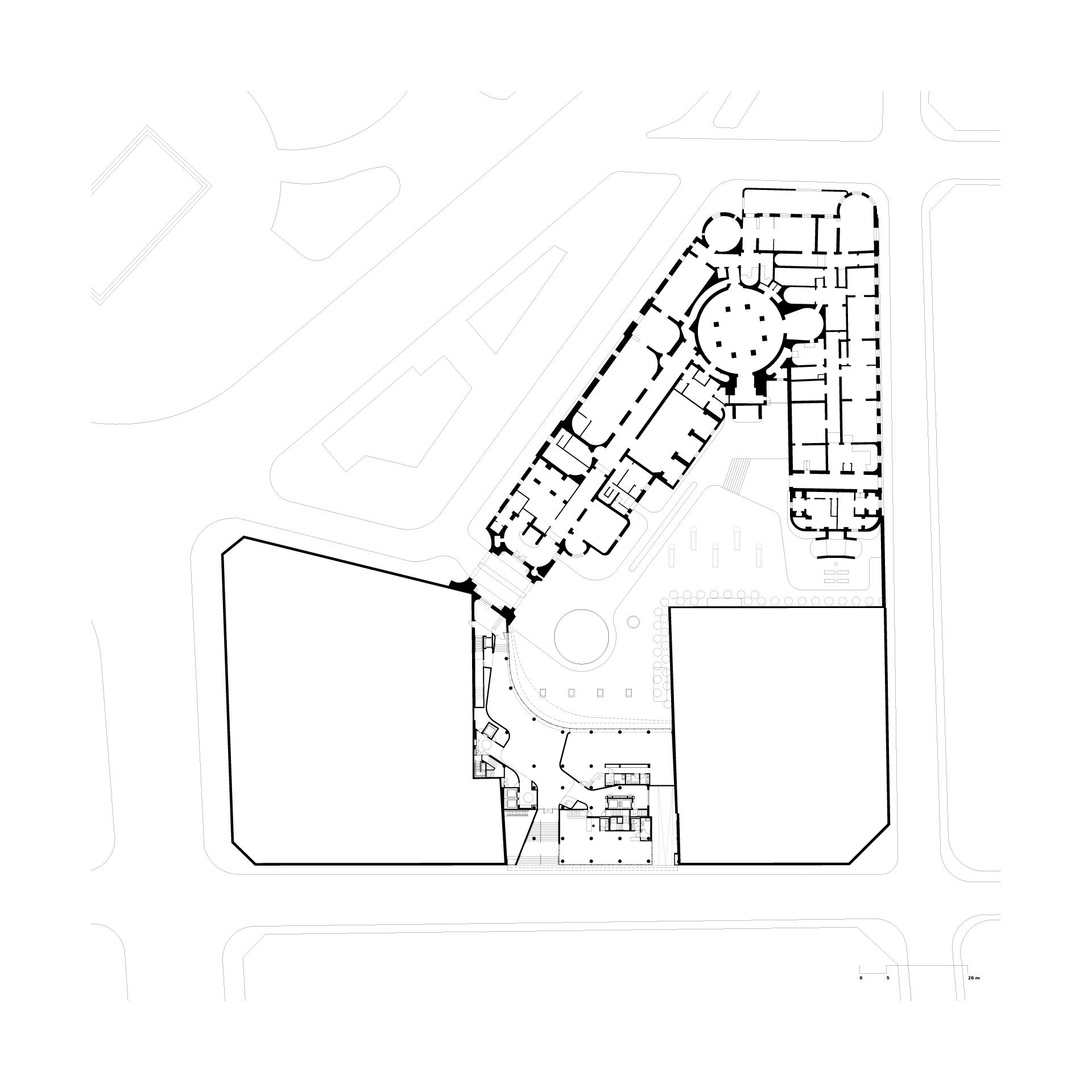
El Palacio Paz XXI es un nuevo edificio de residencias, estudios profesionales y equipamientos deportivos y servicios, con acceso desde Plaza San Martin y la calle Esmeralda, que complementa el contexto de alto valor patrimonial del Palacio Paz y su jardín interior, en las inmediaciones del área de Retiro en Buenos Aires.

El antiguo Palacio Paz es un Monumento Histórico Nacional, construido a principios del siglo XX, en un entorno de calidad urbana y significación histórica único en la ciudad. El edificio está inserto en una manzana irregular, donde la incidencia de las edificaciones vecinas sobre su jardín fue aumentando a medida que se densificó un tejido de edificios altos, cuyas medianeras expuestas conformaban el paisaje dominante desde el interior del palacio.

El nuevo Palacio Paz XXI introduce un nuevo programa mixto con una construcción que reorganiza el volumen edificado de la manzana, basándose en una operación de enrase que le confiere una nueva fachada urbana continua hacia Av. Santa Fe, y cubre las medianeras configurando una mejora sustancial del paisaje interior. Sustituye a un bloque deportivo construido en 1938, cambiando un volumen mediano que dejaba medianeras a la vista hacia ambos lados y proponía una fachada ciega sobre la calle, por una construcción con balcones corridos que equipara la altura de los edificios existentes a ambos lados y modela una serie de bandas horizontales que introducen grandes continuidades entre los diferentes frentes del edificio, abriendo el espacio a la circulación de aire y luz natural.

En la planta baja, el nuevo portal de entrada y la zona comercial estimulan la continuidad del espacio público hacia el jardín del Palacio con una gran marquesina continua y un hall-pasaje que articula diferentes accesos y circulaciones en una forma fluida y sintética, en cuidadoso diálogo con el sistema compositivo de pórticos y salones del antiguo Palacio.
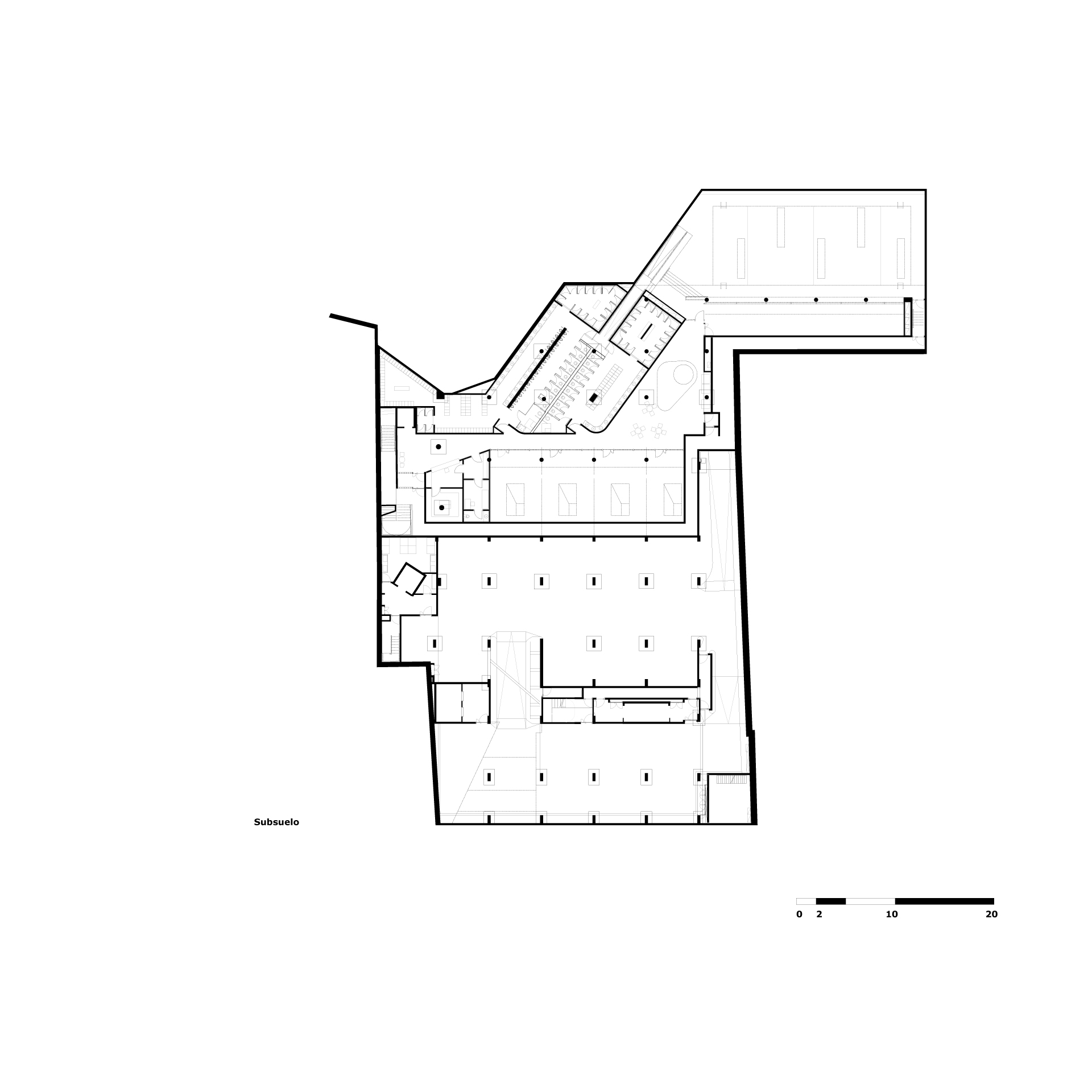
Los programas del bloque deportivo demolido se renuevan y desplazan a un subsuelo debajo del jardín, iluminado por grandes claraboyas, articulado con los nuevos estacionamientos, que se acomodan sobre la calle Esmeralda evitando las interferencias con el túnel del Subterráneo que cruza la parcela.

Las unidades de vivienda y estudios se organizan como ambientes únicos y amplios, vinculados a expansiones al exterior. Los espacios interiores están definidos por pocos materiales muy seleccionados: una estructura de hormigón cuidadosamente realizada, carpinterías de alta prestación y un bloque de gabinetes y revestimientos de madera natural con todos los recursos para climatizar, ventilar, cocinar, lavar y guardar.

Esa misma síntesis en el diseño de todos los elementos que caracterizan la expresión exterior del edificio le permite integrarse a un conjunto complejo y de enorme valor sin introducir disonancias y aportando fundamentalmente su condición contemporánea, valorando su capacidad de reorganizar el tejido urbano, modelando la luz y el espacio con nuevos programas habitables.

Palacio Paz XXI

Proyecto
Palacio Paz XXI
Programa

Edificio residencial de 94 viviendas apto profesional, locales, un club para el Círculo Militar y un estacionamiento subterráneo.

estado
Construido
lugar
Argentina, Ciudad de Buenos Aires
año
2012 - 2019
Cliente
RED S.A.
Superficie
14000 m2
Autores
RDR arquitectos
Colaboradores
Ignacio Dahl Rocha, Bruno Emmer, Facundo Morando, Jacques Richter, Martín Roselló, Roberto Lombardi, Sofía Vivacqua, Josefina de Paul, María Santarelli
Empresa
constructora
Obras y Sistemas
Ingeniería
estructural
Armando Stescovich
Ingeniero
HVAC
C&V HVAC
Ingeniero
sanitario
ITISSA
Ingeniero
electrónico
Ingeniería Acontec
Consultor
de
iluminación
Verónica Gilotaux
Otros
especialistas
Fabio Grementieri - Conservación y Rehabilitación del Patrimonio
Crédito
foto
Javier Agustín Rojas
Palacio Paz XXI

Palacio Paz XXI

2012 - 2019 · Argentina, Ciudad de Buenos Aires · Vivienda » Colectiva

El Palacio Paz XXI es un nuevo edificio de residencias, estudios profesionales y equipamientos deportivos y servicios, con acceso desde Plaza San Martin y la calle Esmeralda, que complementa el contexto de alto valor patrimonial del Palacio Paz y su jardín interior, en las inmediaciones del área de Retiro en Buenos Aires.
+ leer más
Proyecto
Palacio Paz XXI
estado
Construido
lugar
Argentina, Ciudad de Buenos Aires
año
2012 - 2019
Cliente
RED S.A.
Superficie
14000 m2
+ ver créditos