Quartier des Uttins

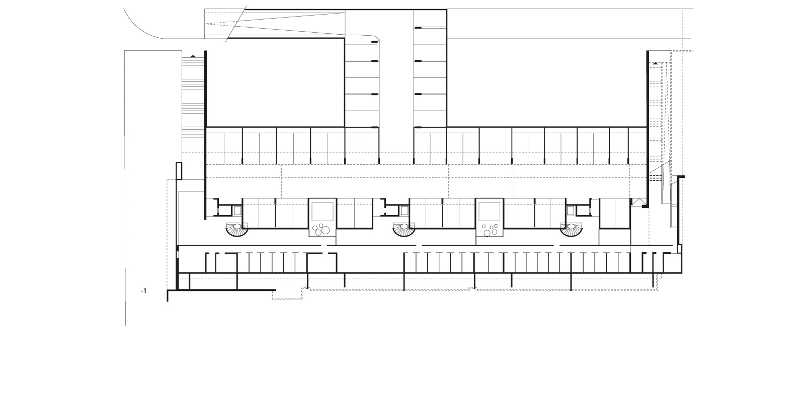
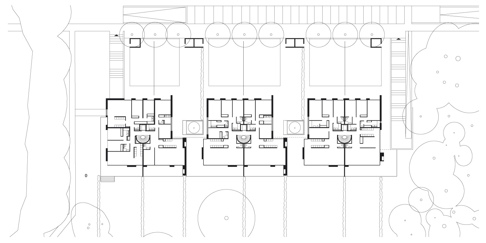
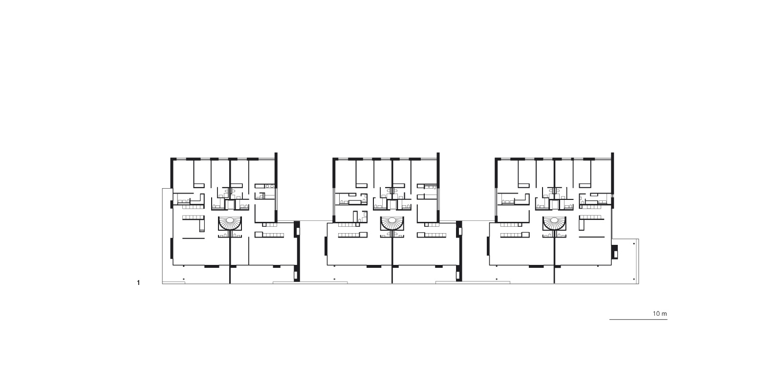
This project consists of a series of buildings, essentially a new neighbourhood, near the old centre of the small town of Rolle situated on the shores of Lake Geneva between the two major urban centres of Geneva and Lausanne. At walking distance from both the centre of the medieval town and the lake, “Les Uttins” consists of three commercial and administrative buildings and four apartment buildings. Presented here is the first apartment complex—“The Oaks.” This building houses 28 apartments with double orientation, located in a luxurious park and offering views onto the lake. The shape of the building is the result of the combination of a series of long horizontal planes forming terraces and balconies facing the park with three compact volumes containing the apartments. The building thus appears through a double typology. From the road, the three volumes stand out and suggest a medium-scale housing typology, whilst from the park, the building presents itself as a more unified whole—the continuity of the terraces is evocative of a bar building—blending into the landscape. This composition is laid onto a lower ground floor housing the access halls to each block, as well as corresponding parking spaces and cellars. This level runs below the housing blocks like a continuous foundation slate, pierced only by two little patios inserted between the volumes, allowing for natural light to illuminate the entrance halls and parking spaces. The two entrances to the complex are located at this lower level, at both ends of the building. The lateral positioning of the entries permitted the creation of private gardens for all apartments on the upper ground level.

Quartier des Uttins

Proyecto
Quartier des Uttins
Programa

Essayez avec cette orthographe : 4 residential buildings: Les Uttins D, 25 apartments; Les Uttins E18 apartments; Les Uttins F, 28 apartments; Les Uttins G, 37 apartments; 4 edificios de viviendas: Les Uttins D, 25 apartamentos; Les Uttins E, 18 apartamentos; Les Uttins M, 28 apartamentos; Les Uttins G, 37 apartamentos

estado
Construido
lugar
Suisse, Rolle
año
2000 - 2007
Cliente
SI Les Uttins sur Léman
Superficie
20400 m2
Autores
RDR architectes
Colaboradores
Jacques Richter, Ignacio Dahl Rocha, Christian Leibbrandt, Bruno Emmer, Bernard Emonet, Antoine Barc, Christian Gonin, Pouska Haessig, Pierre Jacquier, Miroslav Jandescek, Alain Jaquenod, Martin Mouzo, Barbara Moyano Gacitúa, Hector Nunez, Michel Paganin, Fabrice Roulin, Nathalie Saegesser, Philippe Schmittler, Manuela Toscan, Philippe Vauthey
Ingeniería
estructural
Urner & Associés SA
Ingeniero
electrónico
Tecnoconsult SA
Diseño
interior
RDR design SA
Arquitecto
paisajista
Jean-Jacques Borgeaud
Otros
especialistas
Géomètre: Bureau d'Etudes Belotti Daniel
Quartier des Uttins

Quartier des Uttins

2000 - 2007 · Suisse, Rolle · Vivienda » Colectiva

This project consists of a series of buildings, essentially a new neighbourhood, near the old centre of the small town of Rolle situated on the shores of Lake Geneva between the two major urban centres of Geneva and Lausanne. At walking distance from both the centre of the medieval town and the lake, “Les Uttins” consists of three commercial and administrative buildings and four apartment buildings. Presented here is the first apartment complex—“The Oaks.” This building houses 28 apartments with double orientation, located in a luxurious park and offering views onto the lake. The shape of the building is the result of the combination of a series of long horizontal planes forming terraces and balconies facing the park with three compact volumes containing the apartments.
+ leer más
Proyecto
Quartier des Uttins
estado
Construido
lugar
Suisse, Rolle
año
2000 - 2007
Cliente
SI Les Uttins sur Léman
Superficie
20400 m2
+ ver créditos