La Prairie Clinic

Situated in Clarens, near the banks of lake Geneva, the Clinic founded by eminent surgeon Paul Niehans has been operating since the 1930s. Before the extension project, La Prairie Clinic occupied two buildings: the “Residence,” where the original clinic was born, and a more recent glass and steel building housing modern medical facilities. In addition to these, the Clinic then acquired a larger piece of land and two other buildings, the “Château” and the Shalom Villa situated in the upper part of the site. The new extension is constructed as a set of walled terraces blending into the Clinic’s park, at the intersection of all four other existing edifices. A sinuous stonewall was created using small horizontal pieces of a green stone found in the Swiss Grisons, recuperated remainders from the production of a stone quarry laid according to a mortar-free technique.

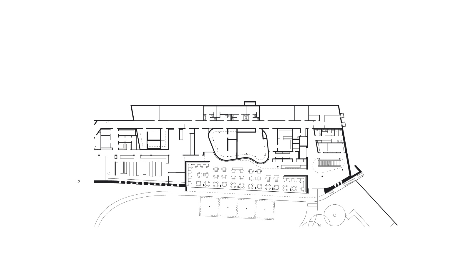
The program—a reception area and bar, two pools with complete spa and fitness facilities, and a restaurant—unfolds into spaces that occupy the interval between the new wall and the existing retaining wall of the “Château.” The choice of such a subtle intervention was motivated by the architects’ desire to preserve and reinforce the natural character of a site understood rather in terms of a rich pre-existing landscape—that of the local vineyards—than as a neutral plot to be built on. The building’s spatial structure extends and reaches out to the other existing buildings via spacious passages, allowing for a more comfortable and unified circulation within the complex. Though the building’s three levels are semi-buried into the ground, a central theme of the project remains that of natural lighting. Light is modulated as it goes through the thick stonewall and the green roofing of each terraces. For example, a series of skylights were built on top of the swimming pool area as well as through the inner surface of the pool itself, allowing daylight to filter through water and reach the inner corridor of the floor below.

La Prairie Clinic

Proyecto
La Prairie Clinic
Programa

Extensión de la clínica, spa, centro wellness, hall de entrada y restaurante

estado
Construido
lugar
Suisse, Clarens - Montreux
año
2001 - 2005
Cliente
Clinique La Prairie SA
Superficie
7320 m2
Autores
RDR architectes
Premios
Best European Spa, premier prix pour la Clinique La Prairie
Colaboradores
Jacques Richter, Ignacio Dahl Rocha, Christian Leibbrandt, Manuel Perez, Bruno Emmer, Bernard Emonet, Frédéric Comby, Dominique Giroud, Christian Gonin, Olivier Hoffman, Emmanuel Oesch, Fabrice Roulin, Nathalie Saegesser, Nathalie Khelfi, Cédric Simon, Claudia Dell'Ariccia, Juliane Mayor, Marco Turin, Konstantin Tzonis.
Ingeniería
estructural
Daniel Willi SA
Geotécnica
Karakas & Français SA
Ingeniero
HVAC
Pierre Chuard SA
Ingeniero
sanitario
Saniplans SA
Ingeniero
electrónico
Amstein et Walthert SA
Diseño
interior
RDR design SA
Arquitecto
paisajista
Jean-Jacques Borgeaud
Otros
especialistas
Géomètre: B + C Ingénieurs SA
Artista
Daniel Schlaepfer
Crédito
foto
Yves André
La Prairie Clinic

La Prairie Clinic

2001 - 2005 · Suisse, Clarens - Montreux · Público » Salud

Situated in Clarens, near the banks of lake Geneva, the Clinic founded by eminent surgeon Paul Niehans has been operating since the 1930s. Before the extension project, La Prairie Clinic occupied two buildings: the “Residence,” where the original clinic was born, and a more recent glass and steel building housing modern medical facilities. In addition to these, the Clinic then acquired a larger piece of land and two other buildings, the “Château” and the Shalom Villa situated in the upper part of the site. The new extension is constructed as a set of walled terraces blending into the Clinic’s park, at the intersection of all four other existing edifices. A sinuous stonewall was created using small horizontal pieces of a green stone found in the Swiss Grisons, recuperated remainders from the production of a stone quarry laid according to a mortar-free technique.
+ leer más
Proyecto
La Prairie Clinic
estado
Construido
lugar
Suisse, Clarens - Montreux
año
2001 - 2005
Cliente
Clinique La Prairie SA
Superficie
7320 m2
+ ver créditos