Estancia Morro Chico

La estancia Morro Chico está situada en los confines de la Patagonia continental argentina en su límite sur con Chile. Su historia se confunde con la saga de los primeros colonos de la región. Fue fundada por un inmigrante escocés que llegó a las Islas Malvinas a fines del siglo XIX y desde allí, como tantos otros, pasó al continente a través de la ciudad chilena de Punta Arenas. A principios del siglo pasado protagonizó el famoso Gran Arreo en el cual 5.000 ovejas viajaron más de 2.000 kilómetros desde la pampa húmeda para poblar las grandes extensiones que el gobierno nacional cedía a los colonos.
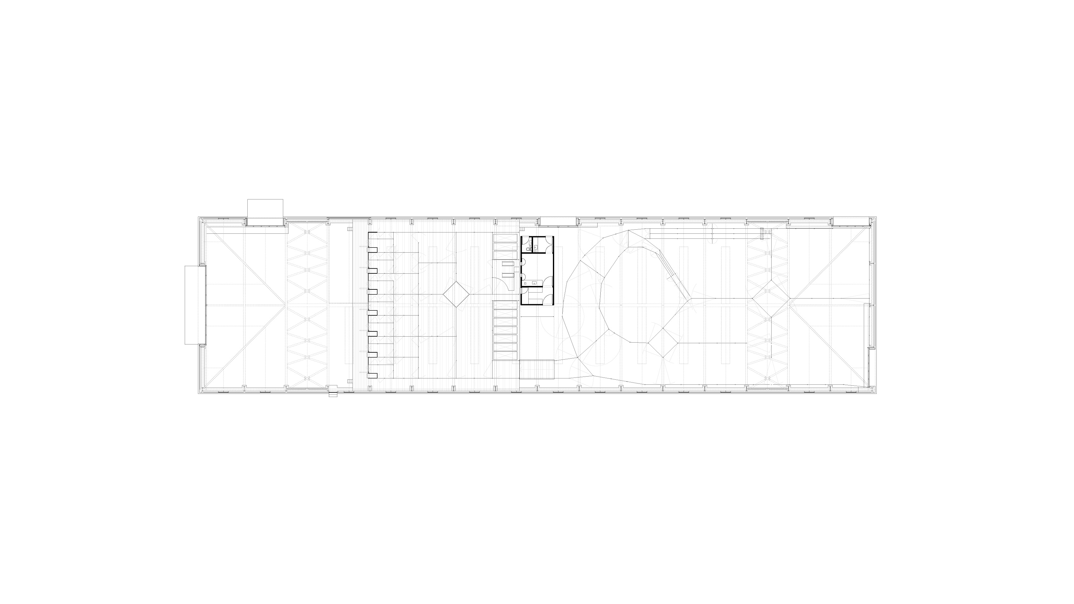
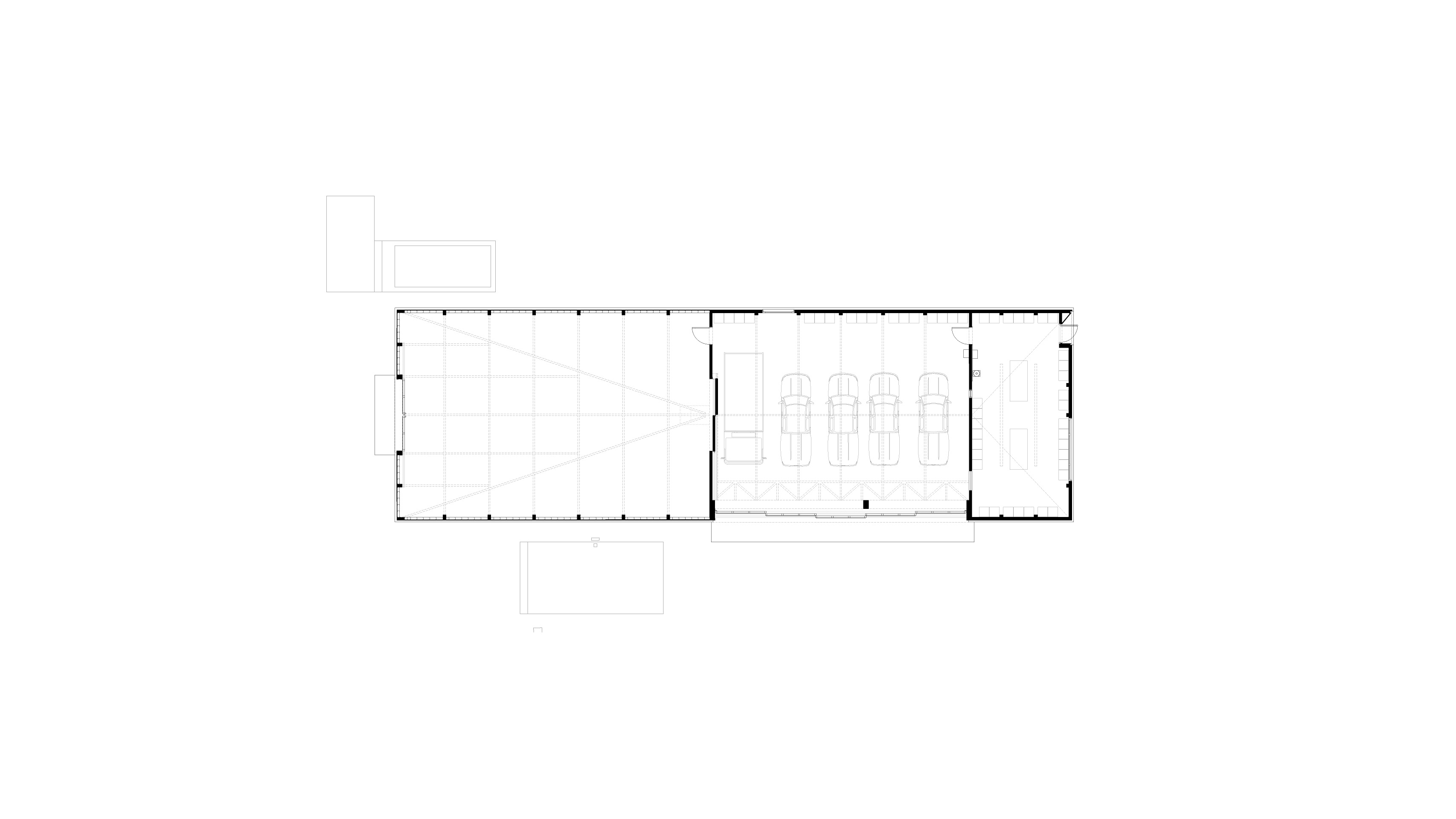
Un siglo más tarde los descendientes de la misma familia originaria encararon el ambicioso desafío de completar y renovar las instalaciones de su estancia. Los objetivos eran múltiples: preservar el patrimonio natural construido de manera sostenible, mejorar la producción de lana y carne y mejorar la calidad de vida de los que allí viven y trabajan. Para ello se elaboró un proyecto y un plan director para la realización de las obras que duraron 4 años y concluyeron en 2019. Los trabajos realizados incluyeron nuevas construcciones tales como un galpón de esquila modelo, situado a algunos kilómetros de distancia del casco; un galpón para máquinas y depósito, un pabellón para vivienda del personal y también una nueva casa para la familia. Incluyeron también el reciclaje de la mayoría de las construcciones existentes (salvo las que se encontraban en muy mal estado) para completar las comodidades del personal y sus familias como también la de los huéspedes de la estancia. 
El antiguo galpón de esquila, todavía operativo, fue restaurado y constituye con sus construcciones aledañas un sector apartado del casco. En la actualidad mantiene su carácter original, como testigo de la historia de la región.
Un capítulo importante de las mejoras fue la introducción de sistemas de producción de energías limpias y renovables. Esto se realizó a través de la instalación de paneles solares y aerogeneradores, como así también por medio de calderas a leña proveniente del raleo de los bosques de ñires del lugar, que puede complementarse con gas envasado, y ha reemplazado la utilización histórica del carbón proveniente de los yacimientos cercanos de Río Turbio.
El ordenamiento del conjunto retoma y reelabora el modelo de aldea compacta característico de los cascos de estancia de la región, en el que las construcciones utilitarias y de vivienda se agrupan para mitigar el rigor del clima y crear lugares acogedores en el desierto patagónico.
El sistema constructivo adoptado, construcción industrializada de madera y metal revestida en chapa de acera ondulado, no difiere mucho del utilizado por los pioneros de la región y responde a los mismos problemas de logística y escasez de recursos locales de entonces. La novedad fue la necesidad de acompañar el concepto energético propuesto con construcciones eficientes en ese sentido. Esto obligó a aislar consecuentemente todas las construcciones calefaccionadas, tanto las nuevas como las existentes, las que fueron revestidas con la misma chapa ondulada. Hoy se confunden entre ellas unificando así el aspecto exterior del conjunto.
La estética general del proyecto se inspira en la arquitectura de los cascos de estancia tradicionales, esos conjuntos de galpones de chapa de extrema austeridad y primitiva simplicidad perdidos en la inmensidad del desierto patagónico. El lenguaje arquitectónico de cada una de las piezas del conjunto desarrolla variaciones formales sobre el tema del galpón de acuerdo con la función y el carácter de las diferentes construcciones.  Estas variaciones van de las formas más simples como el galpón de esquila, hasta formas más complejas como la casa de familia. En cuanto a la materialidad, las declinaciones formales están acompañadas por el juego de contrastes de materiales entre la calidez de la madera que predomina en los interiores (y se deja entrever por fuera en diferentes proporciones) y la dureza de la chapa que caracteriza el aspecto exterior. Consecuentemente, la presencia de la madera es máxima en la casa de familia y va disminuyendo progresivamente a medida que aumenta el carácter utilitario de las construcciones hasta desaparecer completamente en el galpón de esquila.

Estancia Morro Chico

Proyecto
Estancia Morro Chico
Programa

Renovación y ampliación de un complejo para la producción de lana fina Merino | Cobertizo para esquila de ovejas, galpón de maquinarias y almacenamiento, viviendas para el personal, casa de huéspedes y hogar familiar.

estado
Construido
lugar
Argentina, RN 40, Santa Cruz
año
2014 - 2019
Cliente
Private
Superficie
5260 m2
Autores
RDR arquitectos
Premios
XVII Premio SCA CPAU. Planes y proyectos urbanos. Mención de honor: Masterplan Estancia Morro Chico, Santa Cruz
III Bienal Internacional de Arquitectura Argentina. Técnica e Industria: Primer premio. Galpón de esquila, Santa Cruz
XVII Premio SCA CPAU. Mejor obra en el país. Seleccionada: Galpón de esquila, Estancia Morro Chico, Santa Cruz
III Bienal Internacional de Arquitectura Argentina. Técnica e Industria: Seleccionada. Galpón de producción, Santa Cruz
II Bienal Internacional de Arquitectura Argentina. Paisaje y ciudad: Distinción. Estancia Morro Chico, Santa Cruz
Colaboradores
Bruno Emmer, Ignacio Dahl Rocha, Santiago Pagés, Facundo Morando, Susana Barra, Roberto Lombardi, Pablo Peirano, Sofía Vivacqua, Lucas Maschwitz, María Santarelli, Clara Carrera, Agustín Azar, Martina Barra, Santiago Rigoli, Federico Bonessi.
Empresa
constructora
Enobra SA
Ingeniería
estructural
Ing. Alejandra Fogel
Ingeniero
sanitario
LAH - Luis Huailla
Arquitecto
paisajista
Cristóbal Elgueta, Macarena Calvo
Otros
especialistas
Dante Melano, Rafael Oliva (energías renovables), Frisia SA Climatizaciones (termomecánica), Estia (eficiencia energética), Sursolar (Energías Renovables)
Crédito
foto
Cristobal Palma | Javier Rojas | Celine Frers
Estancia Morro Chico

Estancia Morro Chico

2014 - 2019 · Argentina, RN 40, Santa Cruz · Industria

La estancia Morro Chico está situada en los confines de la Patagonia continental argentina en su límite sur con Chile. Su historia se confunde con la saga de los primeros colonos de la región. Fue fundada por un inmigrante escocés que llegó a las Islas Malvinas a fines del siglo XIX y desde allí, como tantos otros, pasó al continente a través de la ciudad chilena de Punta Arenas. A principios del siglo pasado protagonizó el famoso Gran Arreo en el cual 5.000 ovejas viajaron más de 2.000 kilómetros desde la pampa húmeda para poblar las grandes extensiones que el gobierno nacional cedía a los colonos.
+ leer más
Proyecto
Estancia Morro Chico
estado
Construido
lugar
Argentina, RN 40, Santa Cruz
año
2014 - 2019
Cliente
Private
Superficie
5260 m2
+ ver créditos