Centro de Excelencia YPF Agro

En 2022 YPF agro lanza un concurso vinculante para realizar 6 centros destinados a investigar, difundir, distribuir y comercializar productos y servicios para la producción agrícola. (combustibles, aditivos, fertilizantes, semillas, etc.)
Estos Centros denominados “Insignia”, se localizan en cabeceras de regiones productivas del territorio argentino. El primero de ellos se desarrolló en los límites del casco urbano de Tres Arroyos, en el sur de la Provincia de Buenos Aires, sobre la Ruta Nacional 3.

Objetivos - Propuesta de concurso - 2022

El gran desafío de este proyecto prototípico consiste en dar la mejor respuesta técnica y funcional al programa de necesidades, ofrecer una gran versatilidad y flexibilidad, y al mismo tiempo lograr que el lenguaje arquitectónico comunique a la comunidad agropecuaria la identidad y los valores del programa Insignia YPF agro.

Identidad - Una visión innovadora de un clásico

El proyecto busca su identidad en las típicas estructuras metálicas abovedadas de los paisajes del campo argentino. Este tipo de construcción se ha convertido en un clásico de las construcciones rurales por su racionalidad constructiva, su rapidez de montaje, su economía y por su omnipresencia en el campo argentino. Es a partir de una visión innovadora de este tipo de construcción tradicional que desarrollamos los aspectos técnicos, funcionales y estéticos del proyecto.
Esta sucesión de bóvedas y sus accidentes particulares se destacan en el paisaje recortando plásticamente el horizonte del paisaje natural creando una imagen atractiva y fácilmente reconocible.
En primer plano de este conjunto y en armonía con el resto se destaca el edificio principal rodeado del parque de exposiciones y eventos.

Flexibilidad

La flexibilidad como requisito indispensable
El proyecto se presenta como un sistema de estructuras metálicas abovedadas organizadas de manera a garantizar un máximo de flexibilidad para responder a los programas específicos de cada caso particular y a la diversidad de formas y tamaños de los diferentes sitios.

Flexibilidad en relación con el programa
Los programas pueden diferir y evolucionar de acuerdo con diversas variables. Zona geográfica, tipos de cultivos, tamaños, y las variaciones en el tiempo del complejo agroindustrial, un sector que está en plena evolución donde los cambios tecnológicos y comerciales lo modifican año a año.

Flexibilidad en relación con el tamaño y forma de los terrenos.
La ambición de este proyecto como prototipo es definir la impronta formal y funcional de la cadena YPF agro, incluidos los concesionarios. Como vemos en la plataforma actual, los mismos se ubican en terrenos con formas, tamaños y diversas relaciones con la ruta.

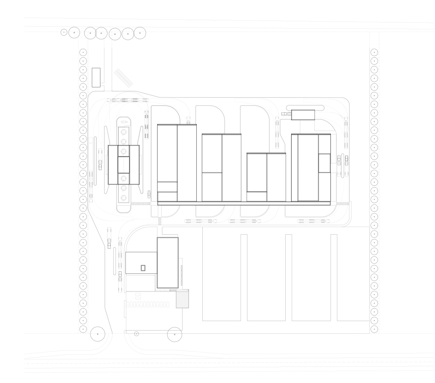
Master Plan

Organización — flexibilidad – versatilidad

El proyecto organiza el terreno en 2 sistemas complementarios. La zona de pública, donde se ubica el edificio principal y el parque de exposiciones y la zona operativa que caracterizan el paisaje hacia el fondo.
Esta línea divisoria será trazada en cada centro de acuerdo a los márgenes de crecimiento que se estipule, pudiendo cambiar la proporción entre área operativa y pública sin cambiar el aspecto del conjunto.
En la zona pública, el parque de exposiciones es un territorio de oportunidad que nos permite una evolución permanente de los elementos que la integran. En la zona operativa la flexibilidad se da por la ampliación o sumatoria de módulos de naves del mercado.
Esta organización de los elementos permite al masterplan prototípico responder fácilmente a los condicionantes de evolución del programa y terreno manteniendo la identidad de los sitios YPF agro.

Seguridad — zona pública

Este proyecto permite modificar fácilmente los límites de seguridad del predio. De acuerdo a la evolución de los programas, en un futuro la zona pública se podrá dividir de la zona operativa para potenciar más su vocación pública, educativa y generadora de lazos sociales.

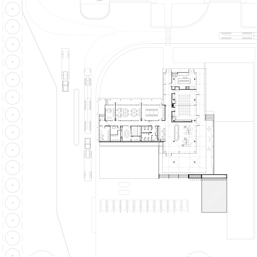
Edificio principal

Este edificio singular, retoma una forma clásica de la arquitectura rural, el tinglado. Pero en este caso la bóveda se presenta como una lámina curva que parece levitar sobre el parque. Es una versión moderna, liviana, abierta, y cálida del galpón. Mantiene la sencillez modular de la arquitectura industrial, permitiendo su construcción simple, ajustada y controlada.
Esta cubierta alberga los espacios flexibles y multifuncionales claves para las actividades sociales, educativas y comerciales del campus. Estos espacios están fuertemente conectados funcional y visualmente con el parque a través de una galería y una gran terraza.
Las oficinas de personal se ubican en un ala fácilmente divisible para mejorar la privacidad. Estos locales se abren directamente hacia el área operativa.

Acceso

Hacia la ruta esta bóveda singular se presenta como un arco de entrada que oficia de semicubierto de acceso y caracteriza la identidad visual del conjunto.
Esta identidad incluye el valor de autenticidad que se manifiesta a través de una arquitectura original y elegante, pero sin gestos superficiales. La materialidad del edificio contribuye también a comunicar valores como la excelencia a través del cuidado y la precisión de los detalles de construcción metálica o el carácter acogedor y natural que evoca la presencia de la madera en el interior.

El parque de exposición

Este territorio versátil está destinado a exponer los elementos claves en el esquema de producción agropecuaria, desde los insumos hasta los productos. Es una góndola a cielo abierto. Como en cualquier exposición, es el lugar donde se podrán mostrar todas las novedades del complejo agro industrial. Silos, silobolsa, agroquímicos, fertilizantes, riego, energía, semillas, plantaciones.
Este territorio le permite al proyecto integrar las novedades y mostrarlas.
Es un territorio de integración, el desafío que tiene el agro en el futuro próximo. La integración de la producción de alimentos con la vida humana, con la biodiversidad. Visibilizando esa búsqueda del complejo agroindustrial hacia una producción sustentable. Es para YPF Agro una vidriera.
Es un espacio que podrá estar caracterizado por los elementos que integran cada ecorregión. Exponiendo las maquinarias, la demostración de cultivos integradas con sectores de plantaciones autóctonas.
De acuerdo a la evolución de cada centro este sector permitirá expandir las actividades del edificio principal, de exposición y de acopio.


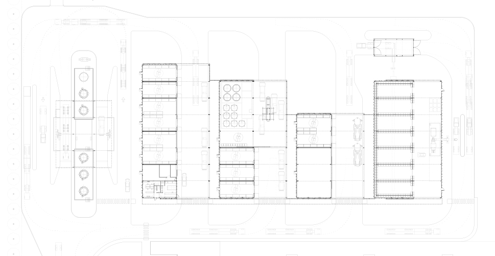
Área operativa — Mercado

El área operativa se organiza con un sistema genérico de módulos de estructuras metálicas abovedados dispuestos en serie, de luz fija, que permite contener todos los programas con sus condicionantes. Especialmente las necesidades de tamaño y distancias de seguridad.
Ventajas del sistema en serie:
• Simplicidad y compacidad en los sistemas circulatorios de los vehículos grandes.
• Conexión peatonal simple, compacta y semicubierta.
• Versatilidad para integrar las evoluciones programáticas.
• Capacidad de desarrollo en sus dimensiones en 2 direcciones. Que permite la mayor capacidad de adaptación a las necesidades de flexibilidad en relación con el programa y en relación al tamaño y forma de los terrenos.

Módulo de mercado.
El módulo de 35 m. de ancho se compone de 3 elementos, una nave cerrada, un espacio de maniobras, y un patio. Un módulo estructural regular de 15mts de luz cubre tanto la nave cerrada como el espacio de maniobras. El patio activo de 5 metros completa el sistema. Este sistema lineal nos permite un crecimiento de las instalaciones asegurando condiciones de uso en toda su longitud.

Distancias mínimas
Los 20mts que suman el patio más la playa de maniobra nos aseguran la distancia mínima necesaria para respetar las disposiciones de incendio, evitando instalaciones onerosas y complejas.

Patio activo
Este patio asegura la iluminación natural y ventilación de los espacios de descarga, mejorando las condiciones de trabajo en estos espacios. Este patio también recibe las aguas pluviales de los galpones directamente evitando canaletas en altura de difícil mantenimiento. El agua pluvial será retenida en el estanque y reutilizada para riego.
A través de portones y carpinterías se podrá fácilmente cerrar los espacios de maniobra que así lo requieran para protegerse del viento o cerrándose completamente.

Lucarnas — alteraciones puntuales.
Estas lucarnas de forma y tamaños diversos, además de caracterizar la cubierta, permiten integrar fácilmente algunas funciones que necesitan mayor altura y mejorar las condiciones de iluminación y ventilación de algunos espacios específicos.

Galería
Una galería semicubierta caracteriza la fachada y conecta los diferentes módulos, produciendo un recorrido peatonal de este sector operativo confortable y seguro.

Combustibles
Se buscó optimizar la agilidad y simpleza de la operación. A su vez su posición hacia el fondo del terreno permite a otros elementos caracterizar el conjunto y alejarlo de la idea hasta ahora centra de distribuidor de combustibles.

Centro de Excelencia YPF Agro

Proyecto
Centro de Excelencia YPF Agro
estado
Construido
lugar
Argentina, RTN3, Partido de Tres Arroyos, Provincia de Buenos Aires
año
2021 - 2023
Cliente
YPF S.A.
Superficie
7886 m2
Autores
RDR arquitectos / Estudio EMMER
Colaboradores
Bruno Emmer, Ignacio Dahl Rocha, Facundo Morando, Roberto Lombardi, Rodrigo García de Cossio, Rodrigo Muro, Nicole Michel, Sofía Vivacqua, Juan Benítez, Candela de Bortoli, María Santarelli, Sofía Galdós, Agustín Azar, Matías Brun, Rocío Pagés, Bárbara Oestereicher, Franco Bisso, Tomás Pérez Amenta, Facundo Burgos, Tomás Kenny, Florencia Kim, Juan Carlos Franchi, Juan Shimazu, Lucía Cortegoso, Sofía Lowe, Lorenzo Rascovan, Guadalupe Castro, Valeria Tawara, Sibila Stein, Federico Canavese, Martín Rodríguez Frank.
Empresa
constructora
Constructora Sudamericana S.A.
Ingeniería
estructural
AHF S.A. (Alberto Fainstein, Carolina Fainstein)
Ingeniero
topográfico
EHSH Ingería Eléctrica
Ingeniero
HVAC
Emilio Emmer
Ingeniero
sanitario
Estudio Labonia (Jorge Labonia, Leonardo Russo)
Ingeniero
electrónico
EHSH Ingeniería Eléctrica (Edgardo Sequeyra, Agustín Sequeyra)
Consultor
de
iluminación
Verónica Gilotaux
Arquitecto
paisajista
Bulla
Otros
especialistas
INSTALACIÓN SASH: Enrique Stasiejko / CÓMPUTO Y PRESUPUESTO: Hugo Bersanker / MARCO NORMATIVO Y GESTIONES: Areté PI (Magdalena Eggers, Gimena Ferraro)
Crédito
foto
Ivan Breyter
Centro de Excelencia YPF Agro

Centro de Excelencia YPF Agro

2021 - 2023 · Argentina, RTN3, Partido de Tres Arroyos, Provincia de Buenos Aires · Industria

En 2022 YPF agro lanza un concurso vinculante para realizar 6 centros destinados a investigar, difundir, distribuir y comercializar productos y servicios para la producción agrícola. (combustibles, aditivos, fertilizantes, semillas, etc.)
Estos Centros denominados “Insignia”, se localizan en cabeceras de regiones productivas del territorio argentino. El primero de ellos se desarrolló en los límites del casco urbano de Tres Arroyos, en el sur de la Provincia de Buenos Aires, sobre la Ruta Nacional 3.
+ leer más
Proyecto
Centro de Excelencia YPF Agro
estado
Construido
lugar
Argentina, RTN3, Partido de Tres Arroyos, Provincia de Buenos Aires
año
2021 - 2023
Cliente
YPF S.A.
Superficie
7886 m2
+ ver créditos