EPFL Quartier de l'Innovation

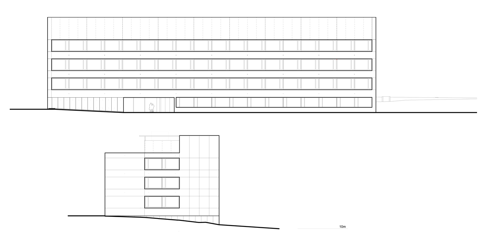
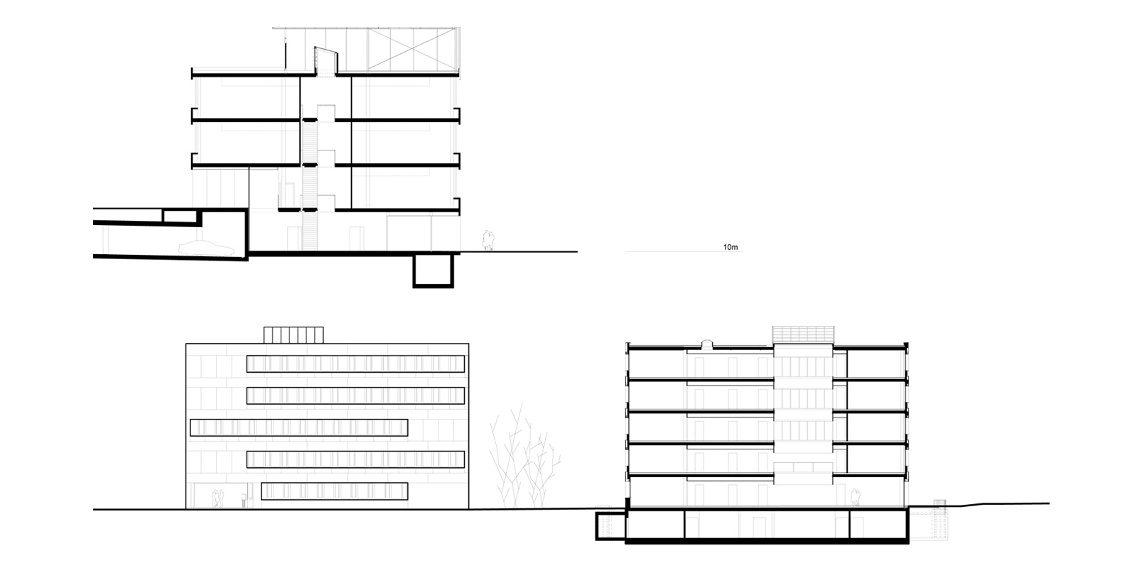
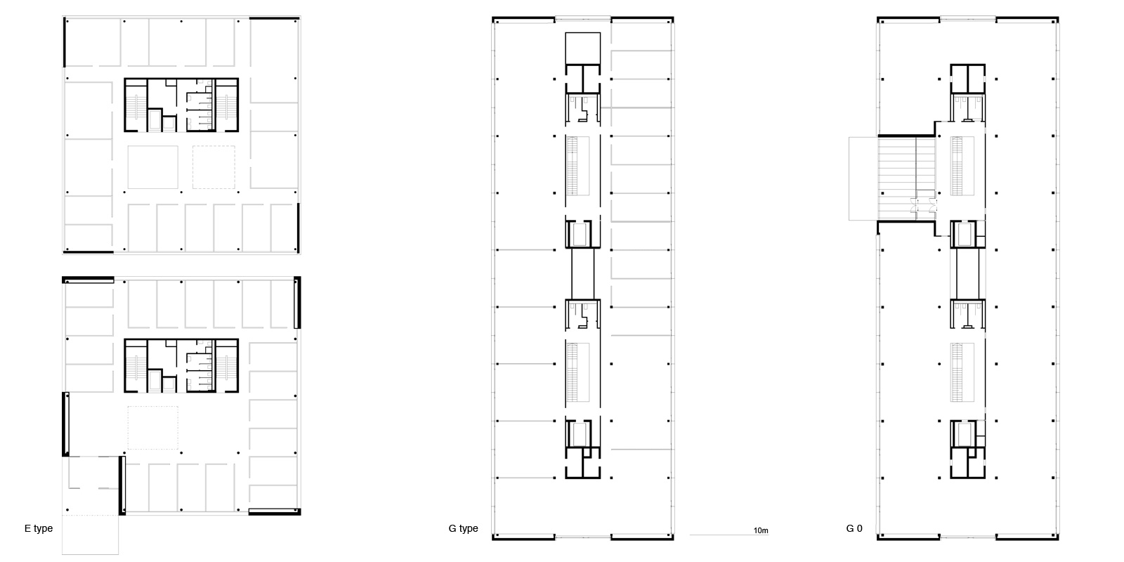
This new quarter of the EPFL campus was destined to provide office and laboratory space for companies that are working in conjunction with the school. In contrast to the character of the first phases of campus development in the late 1970s, focused on modular structures linked to an elevated pedestrian walkway, our interventions in the southern part of the campus proposed to rehabilitate the unbuilt natural terrain as a public space for circulation and as a setting for student life. Despite its relatively high density, the project reinforces that idea by distributing eight buildings in a natural landscape setting in such a way as to control the scale, spatial quality, and character of the interstitial public spaces.


The buildings evoke an atmosphere appropriate to technological research in a convivial atmosphere and at a human scale. The utilisation of white enamelled glass, smooth or with a graphic motif on the inner face of the opaque surfaces, contributes to this. This white background heightens the green tinge typical of ordinary glass, which together with the natural landscaping elements foster a uniquely chromatic effect.


Two of the buildings designed for this quarter were intended to house laboratories. They establish border at the western edge of the ensemble, and are distinguished from the rest by their facades, which combine bare concrete with details in anodised natural aluminium in the openings and the technical attics.

EPFL Quartier de l'Innovation

Project
EPFL Quartier de l'Innovation
Program

8 research and laboratory buildings

status
Built
location
Suisse, Ecublens
year
2006 - 2011
Client
Fonds immobilier UBS Sima, Fondation du Parc Scientifique PSE
Floor area
46812 m2
Authors
RDR architectes
Collaborators
Jacques Richter, Ignacio Dahl Rocha, Christian Leibbrandt, Bruno Emmer, Philippe Marmillod, Yves-Olivier Joseph, Nathanaël Pons, Fabrice Roulin, Lionel Peter, Pouska Haessig, Martin Mouzo, Jérémy Schaffner, Edurne Pradeira, Antoine Barc, Valentina Cambiasio, Manuela Toscan-Essyad, Gilles Margot, Adrien Barakat, Eleonora Modolo, Marco Turin, Bárbara Moyano Gacitúa.
Structural
engineer
Ingeni SA
Geotechnical
Karakas & Français SA
HVAC
engineer
Pierre Chuard Ingénieurs Conseils SA
Sanitary
engineer
H. Schumacher ingénieurs conseils SA
Electrical
engineer
Consortium Betelec - Perrottet SA
Safety
engineer
Hautle Anderegg + Partner AG
Facade
consultant
BCS SA
Acoustical
consultant
Gartenmann Engineering SA
Interior
design
RDR design
Landscape
architect
L'Atelier du paysage Jean-Yves Le Baron Sàrl
Others
consultants
Géomètre: Renaud et Burnand SA
Artist
Daniel Schlaepfer
Photo
credits
Yves André
EPFL Quartier de l'Innovation

EPFL Quartier de l'Innovation

2006 - 2011 · Suisse, Ecublens · Public » Education

This new quarter of the EPFL campus was destined to provide office and laboratory space for companies that are working in conjunction with the school. In contrast to the character of the first phases of campus development in the late 1970s, focused on modular structures linked to an elevated pedestrian walkway, our interventions in the southern part of the campus proposed to rehabilitate the unbuilt natural terrain as a public space for circulation and as a setting for student life. Despite its relatively high density, the project reinforces that idea by distributing eight buildings in a natural landscape setting in such a way as to control the scale, spatial quality, and character of the interstitial public spaces.

+ read more
Project
EPFL Quartier de l'Innovation
status
Built
location
Suisse, Ecublens
year
2006 - 2011
Client
Fonds immobilier UBS Sima, Fondation du Parc Scientifique PSE
Floor area
46812 m2
+ view credits