Estación de servicio Echeverría y Paseo Peatonal.

El proyecto resultó ganador de un concurso convocado por la empresa YPF para concebir la transformación integral de una manzana en Buenos Aires, incluyendo una nueva estación de servicio. Las consignas implicaban una revisión estratégica de ese programa, complementando las funciones habitualmente destinadas a la carga de combustible y asistencia mecánica a los vehículos con una ampliación de prestaciones hacía muy diferentes usuarios, integrando nuevas tecnologías y nuevos paradigmas de sostenibilidad y articulación con la comunidad. El proyecto interpretó esta agenda con la propuesta de una plaza con servicios, concebida como un hub: una concentración localizada de enlaces entre infraestructuras de apoyo y las innumerables actividades que se realizan alrededor del corredor de parques a lo largo de la ribera norte de la ciudad.

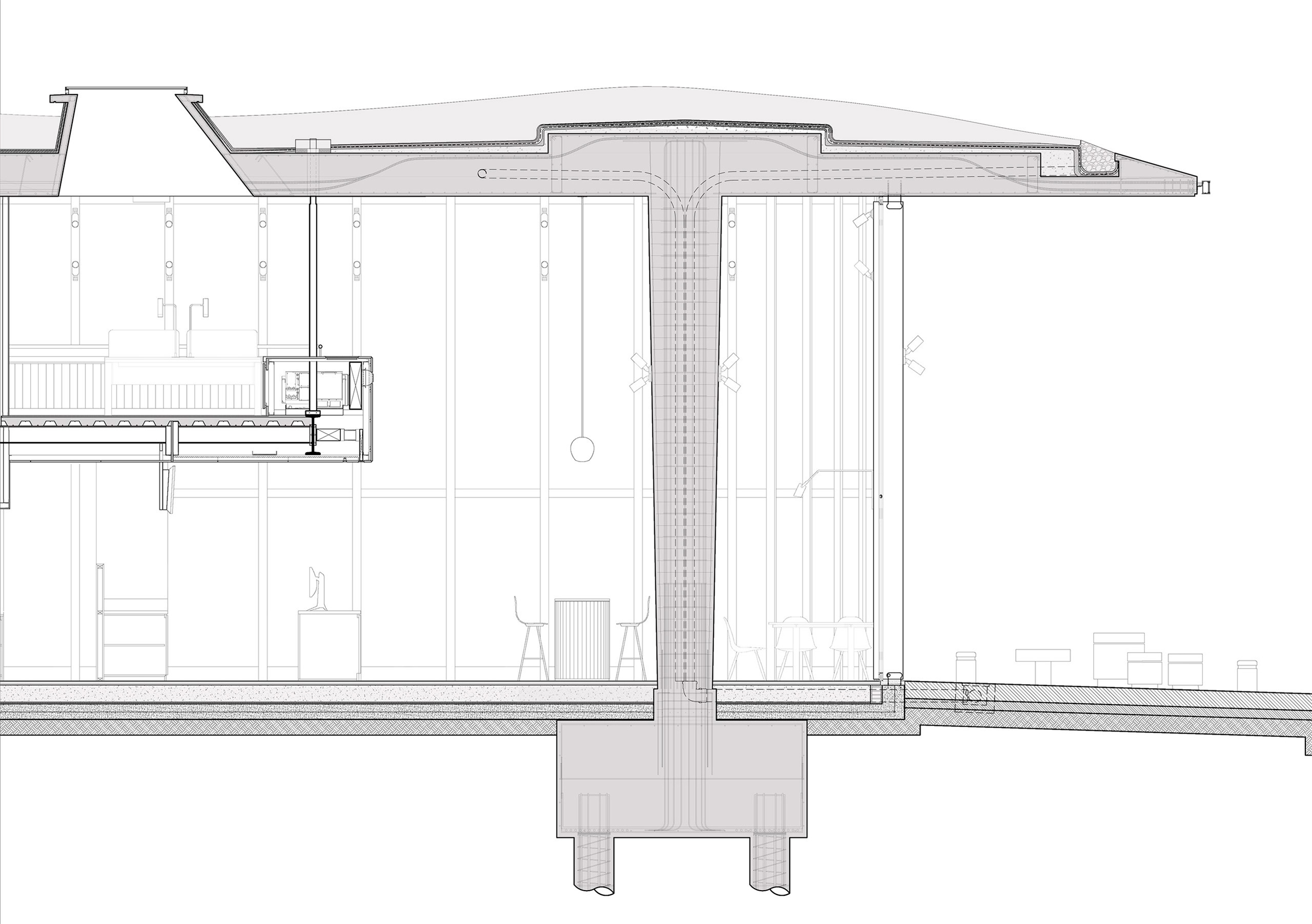
Este punto particular está situado frente al puente que vincula estratégicamente los tejidos interiores de la ciudad con las áreas suburbanas a través de las principales autopistas hacia el norte y este del país, y se constituye además como parada peatonal de caminantes, corredores, ciclistas, etc. que participan de las actividades recreativas de los parques. Hacia ese frente se despliega la estación de servicios, que integra mediante una plaza pública un volumen de cafetería, restaurante y espacios de trabajo colaborativos, con otro de taller mecánico y administración. Hacia el frente opuesto, junto al eje divisorio de predios, un pasaje abierto cruza la manzana conectando las dos calles laterales y facilitando la continuidad de los parques con la estación de servicio, que aporta numerosos servicios específicos a ese paseo (bebederos para personas y mascotas, áreas de descanso, puntos de reparación e inflado de bicis, duchas y vestidores, exposiciones, puntos de carga de dispositivos personales, mesas para comer al aire libre, etc.). Ese espacio público está definido por un pavimento continuo de hormigón con diferentes tonalidades, soporte de canteros, alumbrado y equipamientos, sobre el que se implantan columnas de hormigón, cada una capaz de sostener un módulo circular centrado de capitel y losa. Su disposición variable permite aproximarlas hasta integrarlas para obtener estabilidad y rigidez, o distanciarlas estratégicamente para modelar los espacios cubiertos, semicubiertos y descubiertos de esta plaza de movilidades compartidas de baja velocidad, con prioridades selectivas que actúan localmente guiadas por cordones, bolardos o canteros vegetales. Toda esta unidad está concebida para permitir la recarga de energía y conformar un lugar de encuentro para diferentes usuarios.

Los programas interiores se conforman como dos volúmenes con envolventes modulares de carpinterías transparentes, translúcidas u opales, que circundan los espacios conformando frentes planos con aristas convexas rodeando columnas. Sus variaciones integran en un sistema muy continuo los diferentes grados de confort térmico, acústico y visual de cada situación. El espacio definido entre envolvente y borde de cubierta también varía para producir áreas semicubiertas y descubiertas donde se localizan expansiones que activan todos los frentes y dotan a la estación-plaza de actividades intensas bien distribuidas.

El volumen de servicios gastronómicos se organiza en un espacio que rodea una cocina abierta, concebida para aumentar el interés y volver transparentes todos los procesos de elaboración, con un frente de intercambio entre producción y consumo hacia un salón de doble altura. Este gran espacio interior se integra mediante un hall con un área más amplia y variada, con mesas colectivas y lugares de estar con sillones y mesas bajas rodeando un núcleo de servicios y vinculado por una escalera y dobles alturas con los espacios de trabajo colaborativos en la planta alta. El entrepiso es una bandeja con losa de steel deck y vigas metálicas suspendida por tensores de la estructura primaria de hormigón, rodeada por frentes bajos de madera que integran la tecnología de climatización y ventilación mecánica y se continúan debajo como cielorrasos fonoabsorbentes. Sobre ese soporte se organizan espacios de trabajo informal y algunos servicios, incluyendo algunas salas de reunión con acondicionamientos más controlados.
También el volumen que contiene los servicios a los vehículos y las áreas administrativas incluye un entrepiso metálico suspendido, que se retira de una cara para dejar en doble altura el espacio de lavadero y taller mecánico, conformado como un frente abierto e integrado acorde a la creciente tecnificación de ambos servicios.
En ambos entrepisos se abren claraboyas moldeadas como pliegues de la losa de hormigón, que aportan luz natural al centro de los volúmenes cerrados.

Toda la estación de servicio queda integrada bajo la sombra y el resguardo de esta cubierta continua y de perfil variable. Esa estructura actúa como soporte de una cubierta vegetal concebida como un parche ecológico que reimplanta comunidades vegetales específicas y propias de la ecoregión pampeana, que fueron desplazadas por el modelo de parquización de los siglos XIX y XX. Esta acción viene a integrar al sitio el flujo y la biodiversidad de especies como mariposas y picaflores. Este paisaje autóctono complementa las estrategias del suelo público y las tecnologías del proyecto, que se orienta integral y estratégicamente a mejorar las condiciones de calidad urbana-ambiental con un diseño a la vez innovador y sostenible.

Estación de servicio Echeverría y Paseo Peatonal.

Proyecto
Estación de servicio Echeverría y Paseo Peatonal.
estado
Construido
lugar
Argentina, Buenos Aires. RDR arquitectos - Estudio EMMER
año
2019 - 2023
Cliente
YPF S.A.
Superficie
7886 m2
Autores
RDR arquitectos / Estudio EMMER / Bulla
Colaboradores
Bruno Emmer, Ignacio Dahl Rocha, Facundo Morando, Roberto Lombardi, Rodrigo Muro, Nicole Michel, Sofía Vivacqua, Juan Benítez, Candela de Bortoli, María Santarelli, Sofía Galdós, Agustín Azar, Matías Brun, Gala Traversa, Rocío Pagés, Bárbara Oestereicher, Franco Bisso, Tomás Pérez Amenta, Facundo Burgos, Tomás Kenny, Florencia Kim, Juan Carlos Franchi, Juan Shimazu, Lucía Cortegoso, Sofía Lowe, Lorenzo Rascovan, Guadalupe Castro, Valeria Tawara, Ivan Breyter, Ana García Ricci, Lucía Ardissone, Ignacio Fleurquín, Pablo Rubio, Gerardo Raffo, Emiliano Salvadeo, Leandro Oxilia, Lujan Kanneman, Carlos Anaya.
Empresa
constructora
Constructora Sudamericana
Ingeniería
estructural
Alberto Fainstein, Carolina Fainstein
Ingeniero
HVAC
Emilio Emmer, Luciano Emmer
Ingeniero
sanitario
Jorge Labonia, Leonardo Russo
Ingeniero
electrónico
Edgardo Sequeyra, Agustín Sequeyra
Consultor
de
iluminación
Verónica Gilotaux
Arquitecto
paisajista
Bulla
Otros
especialistas
Ingeniero SASH: Enrique Stasiejko. Consultor de presupuesto: Hugo Bersanker. Consultor de marco normativo: Magdalena Eggers.
Crédito
foto
Javier Agustín Rojas, Bruno Emmer
Estación de servicio Echeverría y Paseo Peatonal.

Estación de servicio Echeverría y Paseo Peatonal.

2019 - 2023 · Argentina, Buenos Aires. RDR arquitectos - Estudio EMMER · Público » Comercial

+ leer más
Proyecto
Estación de servicio Echeverría y Paseo Peatonal.
estado
Construido
lugar
Argentina, Buenos Aires. RDR arquitectos - Estudio EMMER
año
2019 - 2023
Cliente
YPF S.A.
Superficie
7886 m2
+ ver créditos