Concurso Nacional de Anteproyectos Parque y Centro de Exposiciones y Convenciones

Intervención urbana: El parque del centro de exposiciones y convenciones (ceyc), un nuevo parque a escala metropolitana. Nuestro proyecto propone una integración de todos los predios de la intervención al sistema de parques existentes aledaños. El tratamiento de todos los elementos constitutivos como el pabellón, las calles, los senderos y espacios verdes retoman el lenguaje de los parques circundantes para crear un todo continuo y coherente.

Esta integración en los parques se logra a través de diversas intervenciones: 

El pabellón: En nuevo edificio del cec se inserta en el medio del parque. Su forma circular refuerza la continuidad del espacio público y lo define como un hito compacto que anima este parque a su alrededor. Es glorieta, faro, ágora. Un centro de actividad, encuentro y animación en medio del parque.

Concepto paisajístico: El proyecto de paisaje se integra a la estructura urbana y a los parques aledaños a través de un recorrido arbolado que sirve de fondo y conector entre los espacios linderos: parque thays, plaza naciones unidas, plaza república federal del brasil, entorno facultad de derecho. Este bosque lineal se compone de las especies existentes, los árboles a trasplantar, con la incorporación de masas de jacarandaes, ibirá pitá y tipas, que son parte de los árboles nativos incorporados por carlos thays a parques y calles de Buenos Aires. El proyecto plantea una parquización de bajo mantenimiento, acorde a las pautas ambientales requeridas. Maximización de la superficie parquizada: se propone parquizar todas las superficies del predio. Tanto aquellas que están sobre los estacionamientos como aquellas que están sobre terreno natural.
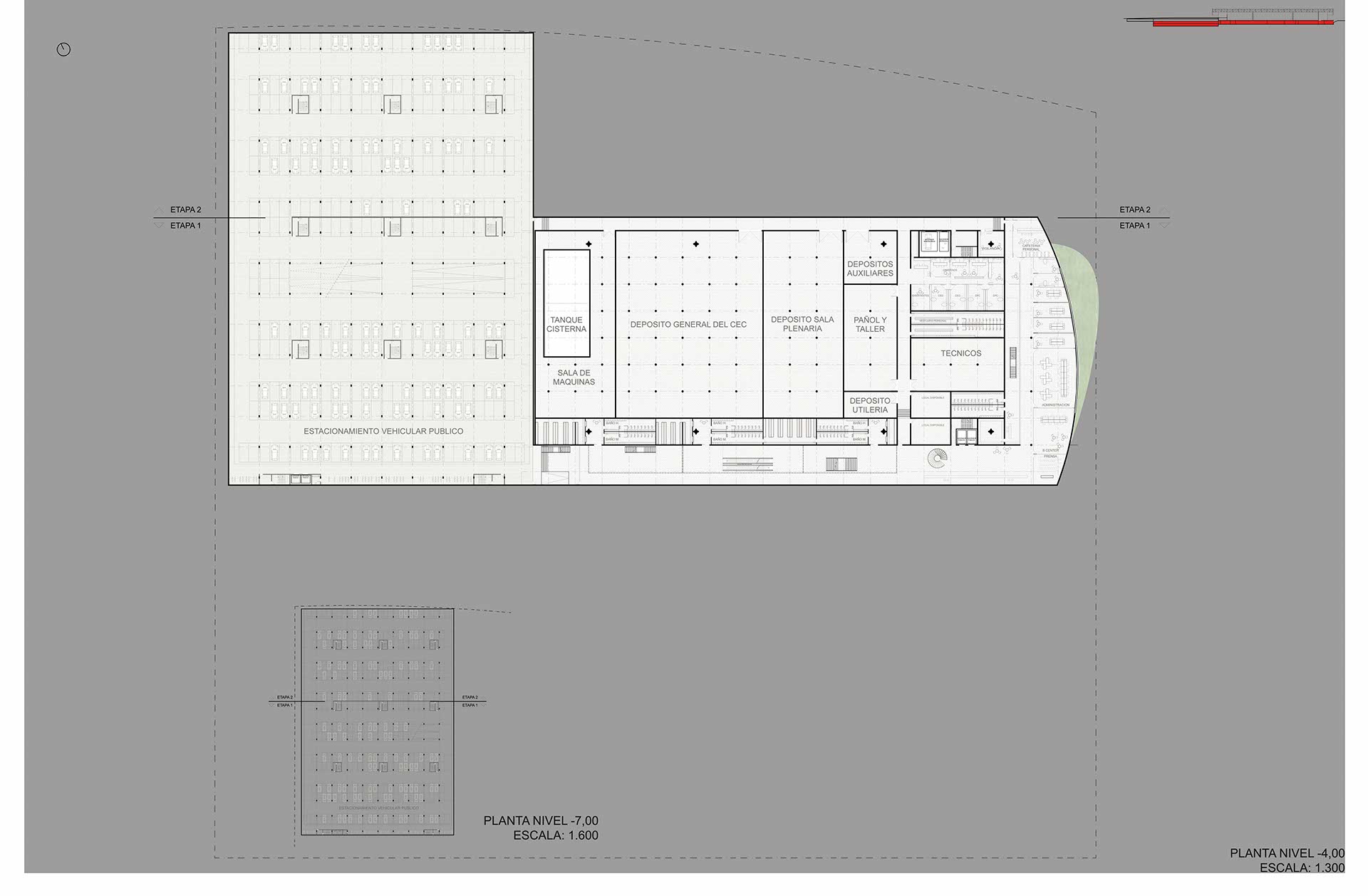
Reorganización vial: Se reduce a lo mínimo indispensable el sistema vial en superficie. El rediseño del trazado vial corta con el sistema ortogonal de la trama urbana y se integra con el sistema de trazado curvilíneo de los parques (para minimizar el sistema vial en superficie se colocan bajo nivel todos los estacionamientos, las playas de armado y los accesos a los mismos logrando una continuidad en el parque desde el cec hasta la facultad de derecho). Circulación peatonal: el nuevo trazado conecta en forma continua todo el nuevo parque y recorre el nuevo pabellón a todo su alrededor. A través de la integración del puente existente cercano a la facultad de derecho y un nuevo puente peatonal que conecta con el palais de glace este sistema peatonal se integra a todo el sistema de parques aledaños.

Transporte público: La estrategia adoptada para desarticular el nodo de la estación de colectivos existente es mediante la descentralización del sistema de paradas. Así se separan las vías de circulación de aquellas líneas que siguen por libertador de los que doblan por Pueyrredon. La estación terminal de las tres líneas restantes se ubica en el norte del terreno animando una zona actualmente poco frecuentada. Este nuevo trazado introduce una distancia suficiente entre los semáforos de F. Alcorta permitiendo un transito vehicular fluido. La nueva estación del subte h, junto con el sistema de colectivos y las ciclovías le confiere al predio una gran conectividad urbana, indispensable para la afluencia masiva de personas que el centro necesita.
360º el pabellón del centro de exposiciones: El nuevo pabellón es un edificio circular inserto en el medio del parque. Su fisonomía y liviandad ofician como contrapunto del edificio de la facultad de derecho. Es un pabellón liviano, permeable, flotando en el espacio público.El edificio se abre al parque en todo su perímetro, es parte del parque. Utiliza al parque como su expansión y le brinda al parque toda su animación. Su piel activa define el carácter del edificio. Es una membrana cromática ligera y translúcida que protege al edifcio y oficia como elemento de comunicación dinámico. Organización : El proyecto organiza todas las partes públicas en forma anillos sucesivos desde el exterior al interior. Un primer anillo es la galería semicubierta que brinda protección tanto del sol como de la lluvia y permite recorrer el edificio en todo su perímetro. Esta galería oficia también de primera distribución a los diferentes accesos. Al interior se encuentran todos los foyers y la cafetería que recorren el perímetro integrando así todas sus actividades al parque generando una gran permeabilidad y versatilidad, animando al parque en todo su recorrido. En el centro se organizan todas las salas de exposiciones y convenciones alimentadas por un único corredor de servicio que conecta las 2 etapas del proyecto.

Funcionalidad: Gracias a la disposición de los niveles, tanto el acceso público desde el estacionamiento como la zona de descarga llegan a nivel de la sala principal. El estacionamiento conecta directamente con el hall principal. La zona de descarga, playa de armado se encuentra en el piso superior de la segunda etapa del estacionamiento y conecta directamente con el corredor de servicios. En momentos de exposición, esta playa de armado se usa como parte del estacionamiento convencional. Los servicios y depósitos se encuentran en el nivel inferior.

Flexibilidad: Todos los espacios principales del centro se desarrollan bajo un único techo con 12 apoyos. Esta disposición permite una gran continuidad entre todos los espacios. La luz estática del techo nos permite tener también un espacio técnico continuo capaz de integrar todas las instalaciones permanentes y temporarias necesarias para el uso. De esta manera salas y halls tienen las mismas cualidades espaciales y técnicas brindando una gran flexibilidad de usos. Flexibilidad de la salas: la organización de las salas nos permite obtener una gran sala plenaria de 5800m2 divisible en 5 salas totalmente independientes mediante un sistema simple de paneles móviles. En el caso de la utilización de salas divididas cada una de ellas tiene un foyer con sus guardarropas y servicios en el nivel inferior que le permite un uso autónomo. El edificio es muy flexible y puede integrar un sistema gala que permite configurar la sala plenaria como un verdadero auditorio con su platea en pendiente, de manera automática en solo 10 minutos.
Estructura: Para privilegiar las grandes superficies libres de apoyos al interior del centro de congresos y ofrecer una gran flexibilidad, el sistema portante propone un techo compuesto de una osatura metálica de grandes luces que permiten la reducción de la cantidad de pilares. El techo único en forma circular esta compuesto por cerchas metálicas dispuestas en ejes ortogonales cada 7m de distancia. Este sistema funciona como entramado de vigas. Esta estructura compuesta por pequeños elementos metálicos permite realizar la obra en dos etapas sin perjudicar el sistema estructural del edificio completo.

Economía estructural: Las cerchas metálicas son elementos portantes económicos ya que todos sus componentes pueden ser optimizados en función de la intensidad de sus esfuerzos. Gracias al su reducido peso, las cargas transmitidas a las fundaciones son muy inferiores a la de una construcción maciza, resultando una estructura económica tanto en si misma como en las infraestructura y fundaciones necesarias. Eficiencia energética. Compacidad: dada su gran compacidad el edificio posee una gran eficiencia energética. En su realización mediante la minimización de los recursos materiales para el desarrollo de la obra. En su vida útil por su gran eficiencia térmica.

Piel activa: Esta piel funciona como protección solar del edificio y como generador de energía. A través de un novedoso sistema de pinturas graetzel esta piel capta la luz natural y los transforma en energía (inclusive días nublados y orientación sur : 360º). La versatilidad de esta tecnología abre un espacio de expresión estética. Aplicada sobre vidrio genera una superficie translúcida?con variaciones cromáticas de acuerdo a los pigmentos utilizados. Esta piel funciona también como elemento de comunicación dinámico a través del sistema luminoso con tecnología led.

Acondicionamiento térmico: El edificio cuenta con un sistema cthi (central térmica hibrida integral) que ofrece un bajo consumo eléctrico y el aprovechamiento de energías limpias. Energías límpias: el sistema cuenta con la captación de energías renovables; esta se obtiene en invierno a través de paneles solares y en verano disipando calor a través de los mismos paneles durante la noche, fuentes de agua y el intercambio con la napa. Acumulador de energía: es una cisterna de 500m3 de agua (200m3 necesarios para el sistema térmico) que capta los aportes de estas energías limpias y permite a la bomba de calor trabajar en su rango de mayor eficiencia energética.

Piso térmico: El aporte de calor o frio al edificio se hace a través del piso térmico que le confiere gran inercia térmica al edificio y crea la zona de confort (2,20mts de altura) evitando climatizar las zonas no útiles en espacios de gran altura.

Minimización del aporte de aire: Incorpora solamente en cada espacio el aire necesario para contrarrestar las cargas de uso iluminación, personas, equipamiento y aire fresco, además en refrigeración para mantener el tenor de humedad relativa, inferior al punto de rocío del piso. Este sistema permite la reducción del 60% del consumo de energía para calefacción y del 50% en refrigeración. Las energías a utilizar son renovables.

Cubierta verde: Este techo de 150mts de diámetro cuenta con una cubierta verde que le confiere al edificio aislación e inercia térmica. A su vez esta cubierta genera una ralentización de las aguas de lluvia. Recuperación y ralentización de aguas de lluvia: la cisterna de 500m3, además de acumulador de energía para el funcionamiento de la central térmica, funciona como ralentización de aguas de lluvia y recuperación de estas para abastecer el uso de aguas grises para las descargas de inodoros y el agua de riego. Oficia también como como tanque de reserva de incendios.

Concurso Nacional de Anteproyectos Parque y Centro de Exposiciones y Convenciones

Proyecto
Concurso Nacional de Anteproyectos Parque y Centro de Exposiciones y Convenciones
estado
Sin construir
lugar
Argentina, Ciudad de Buenos Aires
año
2013 - 2013
Cliente
Ciudad de Buenos Aires
Autores
RDR Arquitectos
Colaboradores
Ignacio Dahl Rocha, Bruno Emmer, Jacques Richter, Kenneth Ross, Santiago Pagés, Facundo Morando, Nicole Michel, Clara Carrera , Natali Lumainsky , Tomas Rowinski , Diego Geraldes , Bruno Goroni, Martina Portugal, Sofia Vivaqua, Malvina Bali
Ingeniería
estructural
Marco Bosso, Lionel Bussard, Emmanuelle Rohrbasser - Lausanne / J. Zaldua - Buenos Aires
Arquitecto
paisajista
Grupo Landscape - Arquitecta Cora Burgin - Buenos Aires
Artista
Catherine Bolle
Concurso Nacional de Anteproyectos Parque y Centro de Exposiciones y Convenciones

Concurso Nacional de Anteproyectos Parque y Centro de Exposiciones y Convenciones

2013 - 2013 · Argentina, Ciudad de Buenos Aires · Público » Cultura

Intervención urbana: El parque del centro de exposiciones y convenciones (ceyc), un nuevo parque a escala metropolitana. Nuestro proyecto propone una integración de todos los predios de la intervención al sistema de parques existentes aledaños. El tratamiento de todos los elementos constitutivos como el pabellón, las calles, los senderos y espacios verdes retoman el lenguaje de los parques circundantes para crear un todo continuo y coherente.
+ leer más
Proyecto
Concurso Nacional de Anteproyectos Parque y Centro de Exposiciones y Convenciones
estado
Sin construir
lugar
Argentina, Ciudad de Buenos Aires
año
2013 - 2013
Cliente
Ciudad de Buenos Aires
+ ver créditos