Beaulieu

Beaulieu

Project
Beaulieu
status
Unbuilt
location
Suisse, Lausanne
year
2008
Client
Beaulieu exploitation SA
Floor area
18500 m2
Authors
RDR Architectes
Collaborators
Ignacio Dahl Rocha, Bruno Emmer, Santiago Pagés, Jacques Richter, Jorgelina Tortorici, Nicolás Adrien
Structural
engineer
IngPhi SA
Beaulieu

Beaulieu

2008 · Suisse, Lausanne · Administrative

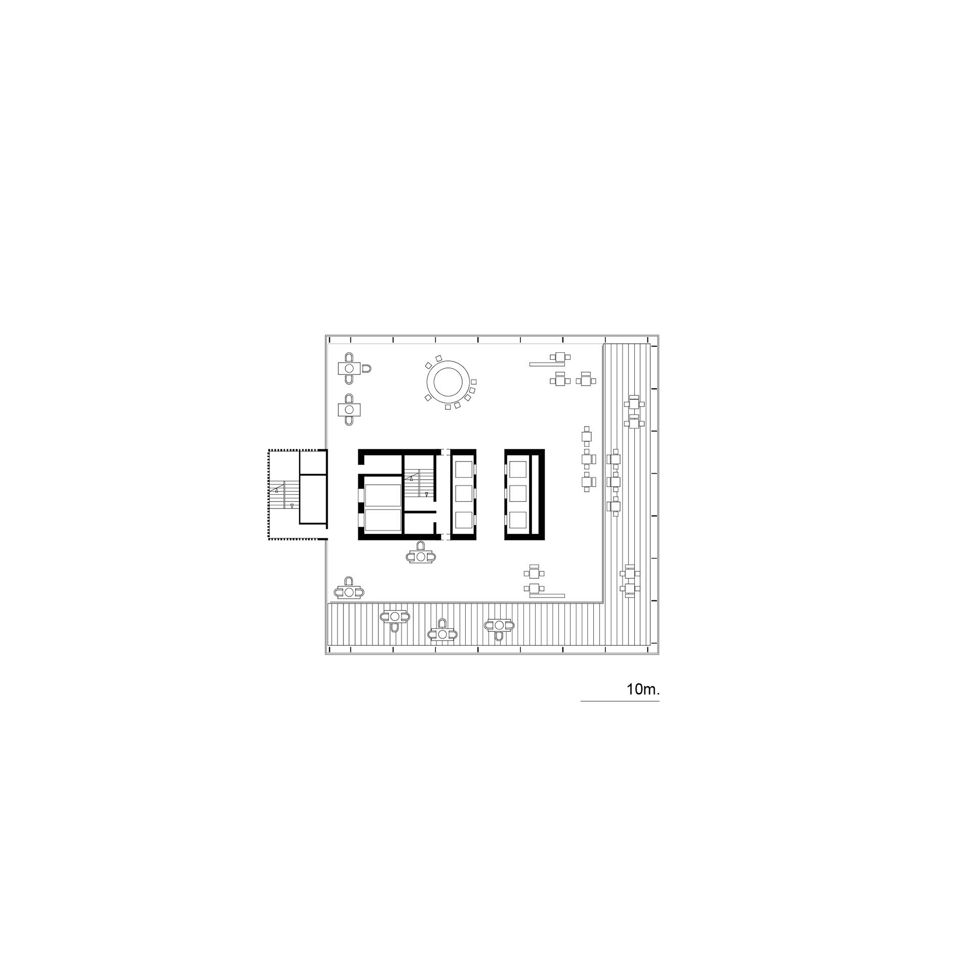
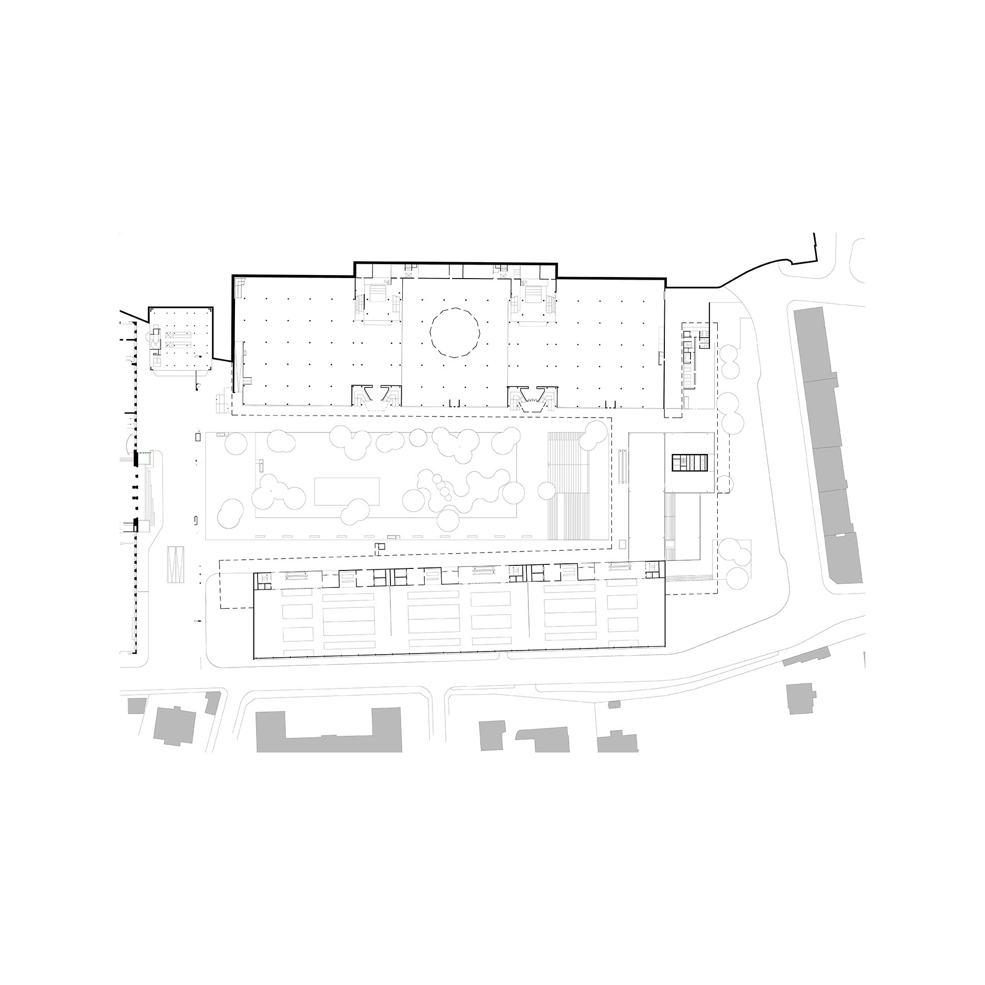
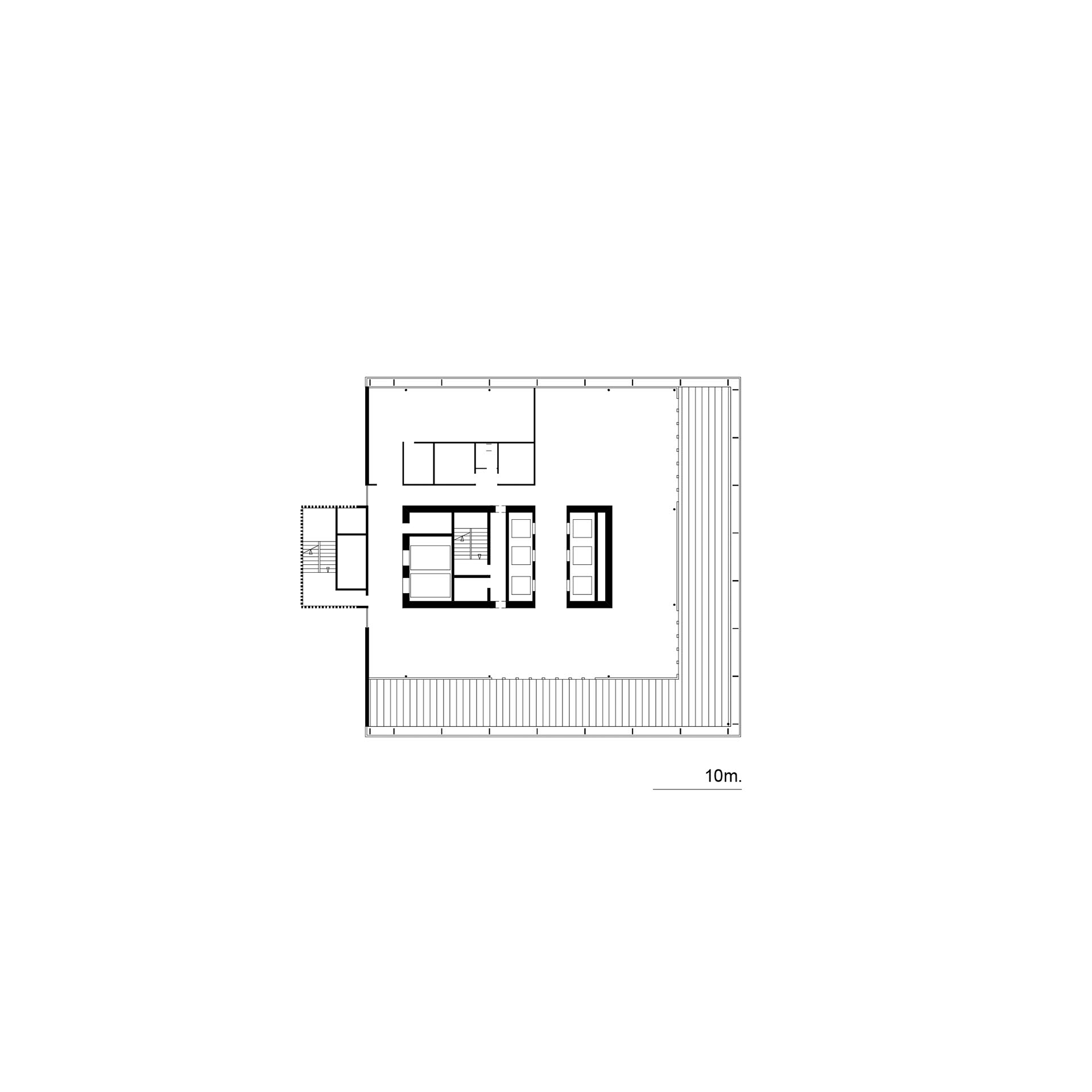
Le projet prévoyait l’agrandissement du Palais de Beaulieu, le centre de congrès lausannois. Sa localisation privilégiée et le programme imposé – hôtels, bureaux et centre commercial - ont conduit à proposer d’ériger une tour libérant ainsi le rez-de-chaussée et permettant de développer et d’agrandir les espaces publics existants. D’autre part, les pavillons existants du centre étaient réaménagés en privilégiant une flexibilité d’usage. L’accès au site à travers une grande marquise qui abrite toutes les fonctions publiques était projetée comme une zone de passage animée par la circulation des visiteurs entre l’espace urbain et le jardin/parc intérieur.
Project
Beaulieu
status
Unbuilt
location
Suisse, Lausanne
year
2008
Client
Beaulieu exploitation SA
Floor area
18500 m2
+ view credits